Nieuwbouwproject RESIDENTIE AURELIANUS
Liersesteenweg 187, 3130 Begijnendijk
















Omschrijving
LAATSTE 2 APPARTEMENTEN
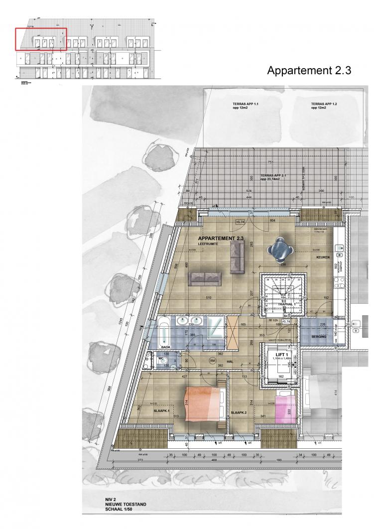
11 nieuwbouwappartementen met 1 & 2 slaapkamers op wandelafstand van de dorpskern van Begijnendijk en op 5km van het centrum van Aarschot, ondergrondse parkeergarage met makkelijke inrit, lift, ruime zuidwest georiënteerde terrassen en tuinen. E-peil <50 VP: vanaf €184.000 tot 219.000, autostaanplaatsen in kelder aan €18.000 prijzen excl. kosten.
Plannen en lastenboek zie www.vandenvonder-decat.be.
Inlichtingen; 0473/245102 of [email protected]
11 nieuwbouwappartementen met 1 & 2 slaapkamers op wandelafstand van de dorpskern van Begijnendijk en op 5km van het centrum van Aarschot, ondergrondse parkeergarage met makkelijke inrit, lift, ruime zuidwest georiënteerde terrassen en tuinen. E-peil <50 VP: vanaf €184.000 tot 219.000, autostaanplaatsen in kelder aan €18.000 prijzen excl. kosten.
Plannen en lastenboek zie www.vandenvonder-decat.be.
Inlichtingen; 0473/245102 of [email protected]
Indeling
Nr. | Type | Prijs | Slk. | Terras | Woonopp. | Grondopp. | Plan | ||
---|---|---|---|---|---|---|---|---|---|
verkocht | Gelijkvloers app. | info op kantoor | 2 | - | 83 m² | - | 1304.Lastenboek_Residentie_Aurelianusdocx.pdf |