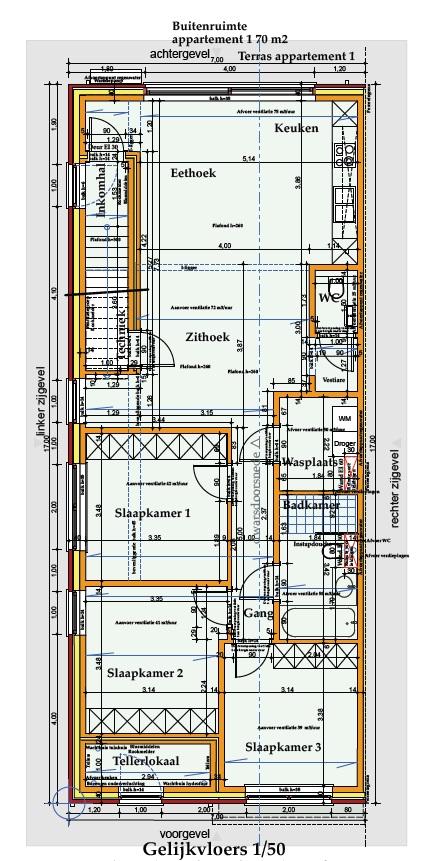
Gelijkvloers app. met 3 slpks
Gelijkvloers app. voor € 329.000
Kerkstraat 15/1, 2235 Hulshout
Ref: spir2006



























3 slaapkamers
1 badkamer
119m2 woonopp.
Bouwjaar: 2024
Omschrijving
Stijlvol nieuwbouw BEN (E10!) appartement pal in het centrum gelegen. Uitzonderlijk drie slaapkamer appartement voorzien van warmtepomp, zonnepanelen en inclusief bovengrondse staanplaatsen. Info/plaatsbezoek via 0473/245102 of [email protected]. EPC = BEN E20 (A-label). Vg,Wg,Gdv,Gvkr,Vv.
Ruimtelijke ordening
Bouwvergunning | Ja |
Recente bestemming | Woongebied |
Dagvaardingen | Nee |
Voorkooprecht | Nee |
Verkavelingsvergunning | Ja |
Effectief overstromingsgevoelig | Nee |
Mogelijk overstromingsgevoelig | Nee |
Afgebakend overstromingsgebied | Nee |
Afgebakende oeverzone | Nee |
Risicozone voor overstromingen | Nee |
G-score | A |
P-score | A |
Financiële info
Prijs | € 329.000,00 |
Prijs grondaandeel | € 75.000,00 |
Registratierechten en erelonen | € 65.882,96 |
Bebouwing
Bouwjaar | 2024 |
Aantal slaapkamers | 3 |
Aantal badkamers | 1 |
Aantal wc's | 2 |
Nieuwbouw | ja |
Staat | Nieuwe staat |
Woonoppervlakte | 119 m² |
Elektrisch keuringsattest | Verkregen, conform |
E-peil | 10 |
Renovatieplicht | Nee |
Alle aanbiedingen gelden onder voorbehoud van fouten, eerdere verkoop, prijswijzigingen of vergetelheid.