Half open bebouwin m gar &tuin
Eengezinswoning voor € 225.000
Netestraat 33, 2235 Westmeerbeek
Ref: 2025/459-A
3 slaapkamers
1 badkamer
497m2 grondopp.
EPC: 666 kWh/m2
Bouwjaar: 1958
Omschrijving
Half open bebouwing gelegen in het centrum van Westmeerbeek op wandelafstand van bushalte, school, winkels,...Gebouw in goede staat, maar aan te passen aan de huidige normen.
1ste verd: 2 grote + 1 kleine slaapkamer en vaste trap naar ruime zolder.
EPC = 666kWh/m² (opgenomen als open bebouwing, ernaast komt de bouwgrond te koop om tegen de rechtergevel van de woning te bouwen, is dan HOB wat de EPC waarde verlaagt).
Voor bezoek: via 0476/ 77 92 91 of via mail
1ste verd: 2 grote + 1 kleine slaapkamer en vaste trap naar ruime zolder.
EPC = 666kWh/m² (opgenomen als open bebouwing, ernaast komt de bouwgrond te koop om tegen de rechtergevel van de woning te bouwen, is dan HOB wat de EPC waarde verlaagt).
Voor bezoek: via 0476/ 77 92 91 of via mail
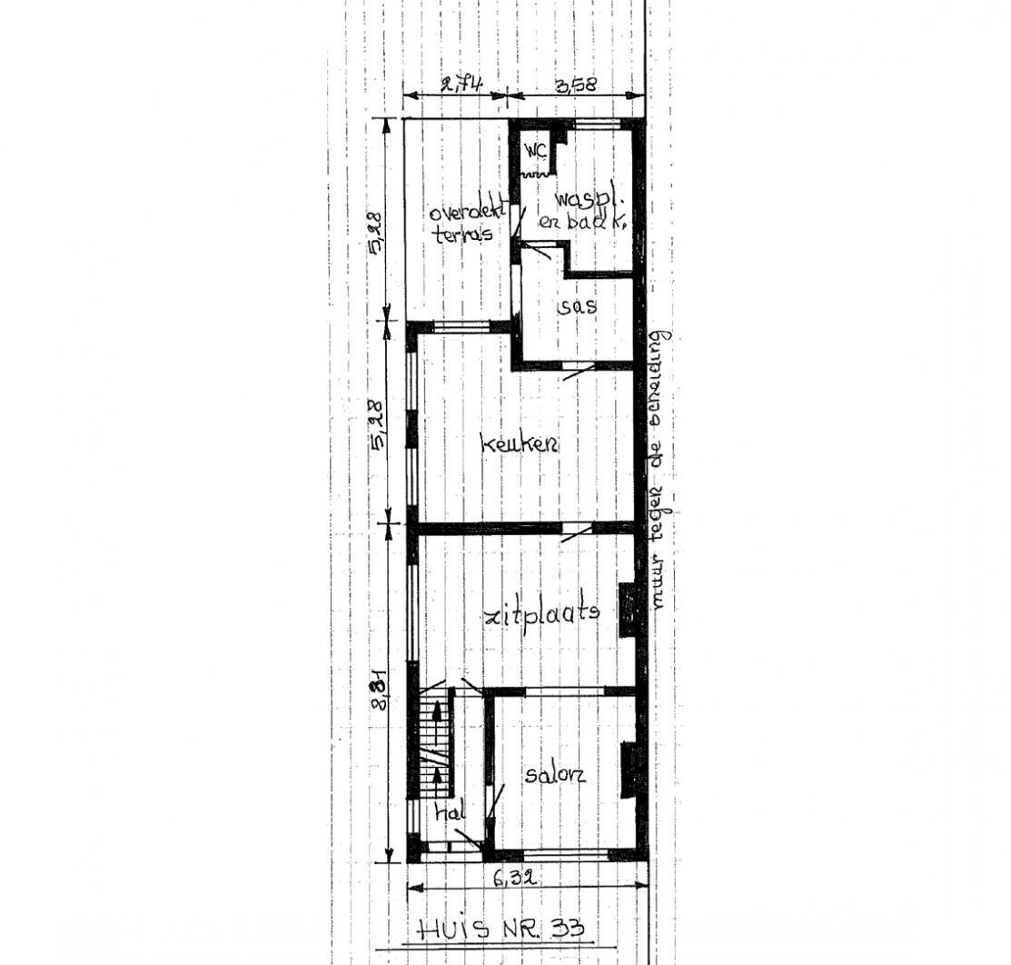
Indeling
Verdieping -1
| Kelder | kleine droge kelder met inkom waterleiding |
Gelijkvloers
| Badkamer 1 | badkamer met inloopdouche, aansluiting wasmachine, ketel CV op stookolie, apart toilet | |
| Garage | aparte garage | |
| Inkomhal | inkomhal - gang met houten trap naar verdieping | |
| Keuken 1 | sobere keukeninrichting | |
| Living | ruime living in L-vorm | |
| Terras | overdekt terras aan de achterinkom | |
| Wasruimte | in de badkamer | |
| Wc1 | apart toilet |
| Cv ruimte | in de badkamer |
Verdieping 1
| Nachthal | ||
| Slaapkamer 1 | ||
| Slaapkamer 2 |
Verdieping 2
| Zolder1 | ruime zolder, eventueel om te vormen tot grote slaapkamer |
Verdieping 3
| Slaapkamer 3 |
Ruimtelijke ordening
| Bouwvergunning |
Nee
Gebouwd in 1958
|
| Recente bestemming |
Woongebied
Gelegen in RUP Centrumwijk
|
| Dagvaardingen | Nee |
| Rechterlijke herstelmaatregel | Nee |
| Bestuursdwang | Nee |
| Last onder dwangsom | Nee |
| Minnelijke schikking | Nee |
| Voorkooprecht | Nee |
| Verkavelingsvergunning | Nee |
| Effectief overstromingsgevoelig | Nee |
| Mogelijk overstromingsgevoelig | Nee |
| Risicozone voor overstromingen | Nee |
| G-score | A |
| P-score | A |
| Maakt deel uit van voorkeursbesluit of projectbesluit | Nee |
| Beschermd pand? | Nee |
EPC gegevens
| Energieklasse label |
F
|
| EPC waarde | 666 kWh/m² |
666
Comfort
| Keukentype | Gedeeltelijk Geïnstalleerd |
| Badkamer type | Ingericht |
| Verwarming | Stookolie |
| Centrale verwarming | ja |
| Schrijnwerk buiten | Hout |
| Rolluiken | ja |
| Beglazing | Enkel glas |
Financiële info
| Prijs | € 225.000,00 |
| Registratierechten en erelonen | € 7.815,45 |
| Ki | € 552,00 |
Overige Info
| Vrij op | bij akte na betaling |
| Tuin aanwezig | ja |
| Orientatie tuin | W |
| Tuin inrichting | Niet aangelegd |
| Aantal douches | 1 |
| Aantal garages | 1 |
| Aantal parkeerplaatsen | 2 |
| Afstand tot openbaar vervoer | 250 m |
| Afstand tot winkels | 250 m |
| Afstand tot school | 300 m |
Bebouwing
| Bebouwing | halfopen |
| Bouwjaar | 1958 |
| Aantal slaapkamers | 3 |
| Aantal badkamers | 1 |
| Aantal wc's | 1 |
| Staat | Te renoveren |
| Grond oppervlakte | 497 m² |
| Perceelbreedte | 10,70 m |
| Perceeldiepte | 37,92 m |
| Gevelbreedte | 6,32 m |
| Aantal gevels | 3 |
| Type dak | Zadeldak |
| Kadastraleafdeling | 2 |
| Kadastralesectie | B |
| Kadastraleaard | huis |
| Perceelnummer | deel van 102Y |
| Elektrisch keuringsattest | Niet ingegeven |
| Renovatieplicht | Ja |
Downloads
Alle aanbiedingen gelden onder voorbehoud van fouten, eerdere verkoop, prijswijzigingen of vergetelheid.