Ref: spir1523




















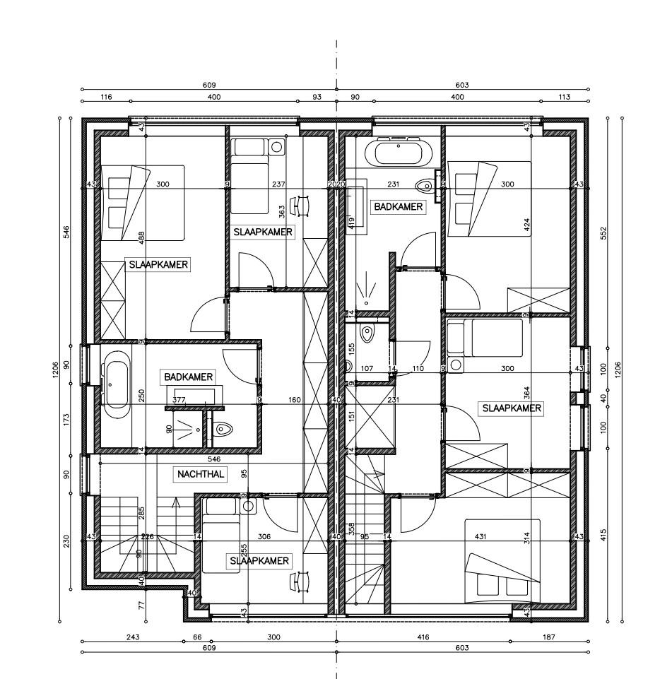
3 slaapkamers
1 badkamer
144m2 woonopp.
333m2 grondopp.
Bouwjaar: 2019
Omschrijving
Prachtige nieuwbouwwoning in een rustige straat, vlakbij alle voorzieningen.
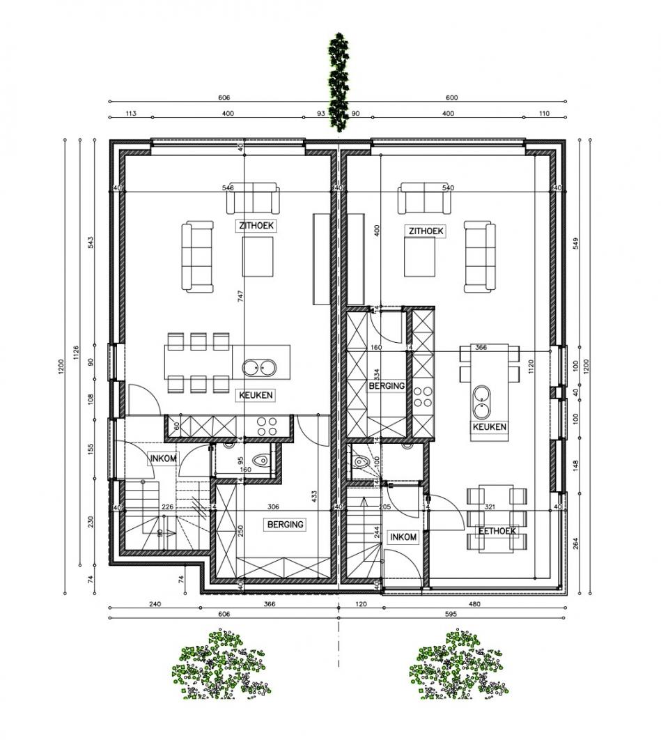
Woning is voorzien in o.a. inkom , gastentoilet, open keuken met leefruimte, berging.
Op de verdieping bevinden zich 3 slaapkamers en een badkamer met dubbele wastafel, ligbad, douche en toilet.
Oplevering vanaf mei 2020.
Woning is voorzien in o.a. inkom , gastentoilet, open keuken met leefruimte, berging.
Op de verdieping bevinden zich 3 slaapkamers en een badkamer met dubbele wastafel, ligbad, douche en toilet.
Oplevering vanaf mei 2020.
Ruimtelijke ordening
Bouwvergunning | Ja |
Recente bestemming | Woongebied |
Dagvaardingen | Nee |
Voorkooprecht | Nee |
Verkavelingsvergunning | Nee |
Effectief overstromingsgevoelig |
Ja
|
Mogelijk overstromingsgevoelig | Nee |
Afgebakend overstromingsgebied | Nee |
Afgebakende oeverzone | Nee |
Risicozone voor overstromingen | Nee |
Comfort
Keukentype | Geïnstalleerd |
Badkamer type | Ingericht |
Verwarming | Aardgas |
Vloerverwarming | ja |
Schrijnwerk buiten | Aluminium |
Beglazing | Dubbel glas |
Aansluiting riolering | ja |
Septische put | ja |
Aansluiting aardgas | ja |
Waterput | ja |
Inhoud waterput (liter) | 7500 |
Financiële info
Prijs | Info op kantoor |
Overige Info
Vrij op | 01/05/2020 |
Tuin aanwezig | ja |
Aantal douches | 1 |
Bebouwing
Bebouwing | halfopen |
Bouwjaar | 2019 |
Aantal slaapkamers | 3 |
Aantal badkamers | 1 |
Aantal wc's | 2 |
Staat | Nieuwe staat |
Grond oppervlakte | 333 m² |
Woonoppervlakte | 144 m² |
Perceelbreedte | 9 m |
Perceeldiepte | 37 m |
Type dak | Plat dak |
Elektrisch keuringsattest | Niet ingegeven |
Renovatieplicht | Niet ingegeven |
Downloads
Alle aanbiedingen gelden onder voorbehoud van fouten, eerdere verkoop, prijswijzigingen of vergetelheid.