Ref: spir2106

















4 slaapkamers
1 badkamer
222m2 woonopp.
501m2 grondopp.
EPC: 215 kWh/m2
Bouwjaar: 2004
Omschrijving
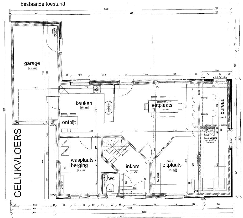
Instapklare, energiezuinige, zeer complete, ruimtelijke, lichtrijke eengezinswoning voorziet in o.a. volumineuze leefruimtes, open keuken, home office, ruime garage, grote berging, vier ruime slpks, badkamer met dubbele spoelbak, bad en douche, omheinde zuidtuin met twee terrassen en tuinberging.
Gelegen pal in het dorp op wandelafstand van alle faciliteiten inclusief scholen in een zeer rustige doodlopende (lus)straat.
Info/plaatsbezoek 0473/245102 of [email protected].
Gelegen pal in het dorp op wandelafstand van alle faciliteiten inclusief scholen in een zeer rustige doodlopende (lus)straat.
Info/plaatsbezoek 0473/245102 of [email protected].
Ruimtelijke ordening
Bouwvergunning | Ja |
Recente bestemming | Woongebied |
Dagvaardingen | Nee |
Voorkooprecht | Nee |
Verkavelingsvergunning | Ja |
Effectief overstromingsgevoelig | Nee |
Mogelijk overstromingsgevoelig | Nee |
Afgebakend overstromingsgebied | Nee |
Afgebakende oeverzone | Nee |
Risicozone voor overstromingen | Nee |
G-score | A |
P-score | A |
EPC gegevens
Energieklasse label |
C
![]() |
EPC waarde | 215 kWh/m² |
215
Comfort
Keukentype | Geïnstalleerd |
Badkamer type | Ingericht |
Verwarming | Aardgas |
Financiële info
Prijs | Info op kantoor |
Bebouwing
Bebouwing | open |
Bouwjaar | 2004 |
Aantal slaapkamers | 4 |
Aantal badkamers | 1 |
Aantal wc's | 2 |
Grond oppervlakte | 501 m² |
Woonoppervlakte | 222 m² |
Elektrisch keuringsattest | Verkregen, conform |
Renovatieplicht | Nee |
Alle aanbiedingen gelden onder voorbehoud van fouten, eerdere verkoop, prijswijzigingen of vergetelheid.